Rapla linnas Välja tn36 maaüksusele (katastritunnus 67001:008:0880) esitati taotlus olemasolevad hooned lammutada ja püstitada uus ühekorruseline viilkatusega üksikelamu. Tegemist on detailplaneeringu koostamise kohustusega piirkonna ning üldplaneeringu kohaselt pere- ja ridaelamu maa juhtotstarbega alaga. Detailplaneeringu asendamisel projekteerimistingimuste menetlusega on avatud menetluse korraldamine kohustuslik. Eelnõu avaliku väljapaneku periood on 10. kuni 25. jaanuarini 2026. Avalikustamise jooksul on valla e-posti aadressile oodatud arvamused ja ettepanekud eelnõule. Kui ettepanekuid ei esitata või on kõiki ettepanekuid võimalik arvestada, otsustatakse asi ilma avalikul istungil arutamata.

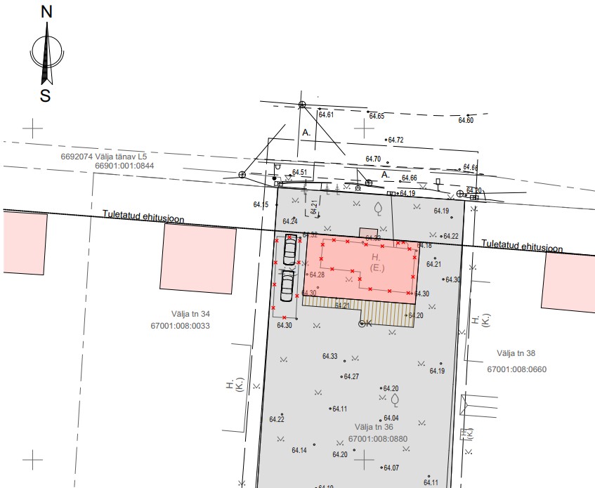
Asendiplaani eskiisi väljavõte
Taotlusega koos esitati eskiislahendus (autor arhitekt Erko Leo)
Taotlus
Projekteerimistingimuste eelnõu
Projekteerimistingimused anti Rapla Vallavalitsuse 2. veebruari korraldusega nr 37.

